8169 Run of the Knolls , San Diego, CA 92127
- $11,800,000
- $11,800,000
Description
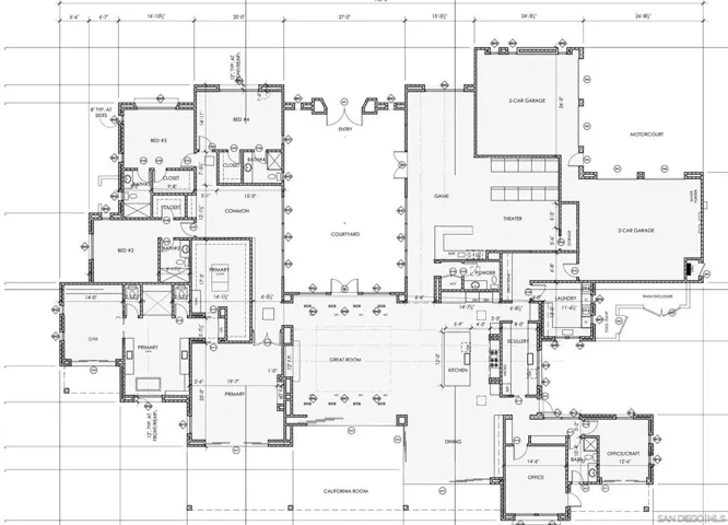
Discover unparalleled luxury in this GROUND UP BRAND NEW CONSTRUCTION, offering breathtaking panoramic golf course views. Nestled within an exclusive, guard-gated golf community, this never-lived-in home is a masterpiece of modern design. The single-level floor plan is open, airy, and flooded with natural light. Almost every room offers stunning golf course vistas, creating a serene, resort-like ambiance. The expansive covered patios seamlessly extend the living space, ideal for year-round entertaining, as they flow effortlessly through disappearing glass doors into the main home. The gourmet kitchen is a chef’s dream, featuring high-end appliances, custom cabinetry, and an open flow to the dining and living areas. A grand game room, complete with a wet bar and home theater, provides endless entertainment possibilities. Work from home in one of two private offices, each with sweeping golf views. A detached casita offers a fully equipped kitchen, perfect for guests or multi-generational living. This home is a rare gem in a prime location, combining sophisticated design, resort-style living, and elite golf course access. Don’t miss this extraordinary opportunity. Please watch video. . House is currently under construction, will be done by the end of 2026, buyer may customize some options if purchased promptly. Members of Santaluz enjoy world-class amenities, including a Reese Jones–designed championship golf course, a luxurious clubhouse, sparkling pools, and multiple recreational areas, all within a gated community offering 24-hour security. Conveniently located near top-rated schools, this home harmoniously blends refined living, modern comfort, and lifestyle convenience. Every detail reflects timeless design and thoughtful craftsmanship, creating a rare opportunity to experience serene luxury in one of San Diego’s most coveted addresses. Schedule a private tour today and immerse yourself in this extraordinary retreat.
Address
Open on Google Maps- Address: 8169 Run of the Knolls
- City: San Diego
- State/county: CA
- Zip/Postal Code: 92127
- Area: Santaluz
- Country: US
Details
Updated on April 25, 2026 at 12:46 am- Property ID 260009906SD
- Price $11,800,000
- Land Area 1.24 Acres
- Bedrooms 5
- Bathrooms 7
- Garages 4.0
- Garage Size x x
- Year Built 2026
- Property Type Single Family Residence, Residential
- Property Status Active
Additional details
- Listing Terms Cash, Conventional
- Association Fee 650.0
- Cooling Central Air
- Heating Forced Air,Solar
- Flooring Tile, Wood
- County San Diego
- Property Type Residential
- Pool In Ground,Association
- Parking Driveway
Overview
- Single Family Residence, Residential
- 5
- 7
- 4.0
- 2026
Mortgage Calculator
- Down Payment
- Loan Amount
- Monthly Mortgage Payment
- Property Tax
- Home Insurance
- PMI
- Monthly HOA Fees


